JABODETABEK : +6282146645837
  LUAR JABODETABEK : +6282219788877

Daftar Gambar Teknis untuk Perencanaan Desain Rumah

Daftar Gambar untuk Perencanaan Desain Rumah Beserta Fungsinya
  4 Agustus 2021
Ditulis oleh Fairus Rizki Nurrahmawati, S.Ars, Ditinjau oleh Agus Yasa Rahayu, S.T. dan I Gede Agus Parwata, S.T.

Siap Merencanakan Desain Rumah? Ketahui Dulu Daftar Gambar untuk Perencanaan Desain Rumah Beserta Fungsinya

Yakin Anda sudah siap merencanakan desain rumah? Sekalipun Anda sudah menyiapkan hal-hal lain seperti data topografi dan luasan lahan kosong yang akan dibangun, data kebutuhan ruang, pilihan style bangunan, serta budget untuk biaya desain dan pembangunan, jangan terlalu yakin bila Anda belum tahu daftar gambar desain rumah.

Karena banyak yang belum mengetahui jenis serta manfaat masing-masing gambar teknis, pada artikel ini Emporio Architect akan membahas daftar gambar rencana desain rumah dan fungsinya sehingga Anda tahu apa-apa saja fungsi gambar desain yang dibuat oleh arsitek.

A. Gambar Teknis Arsitektur

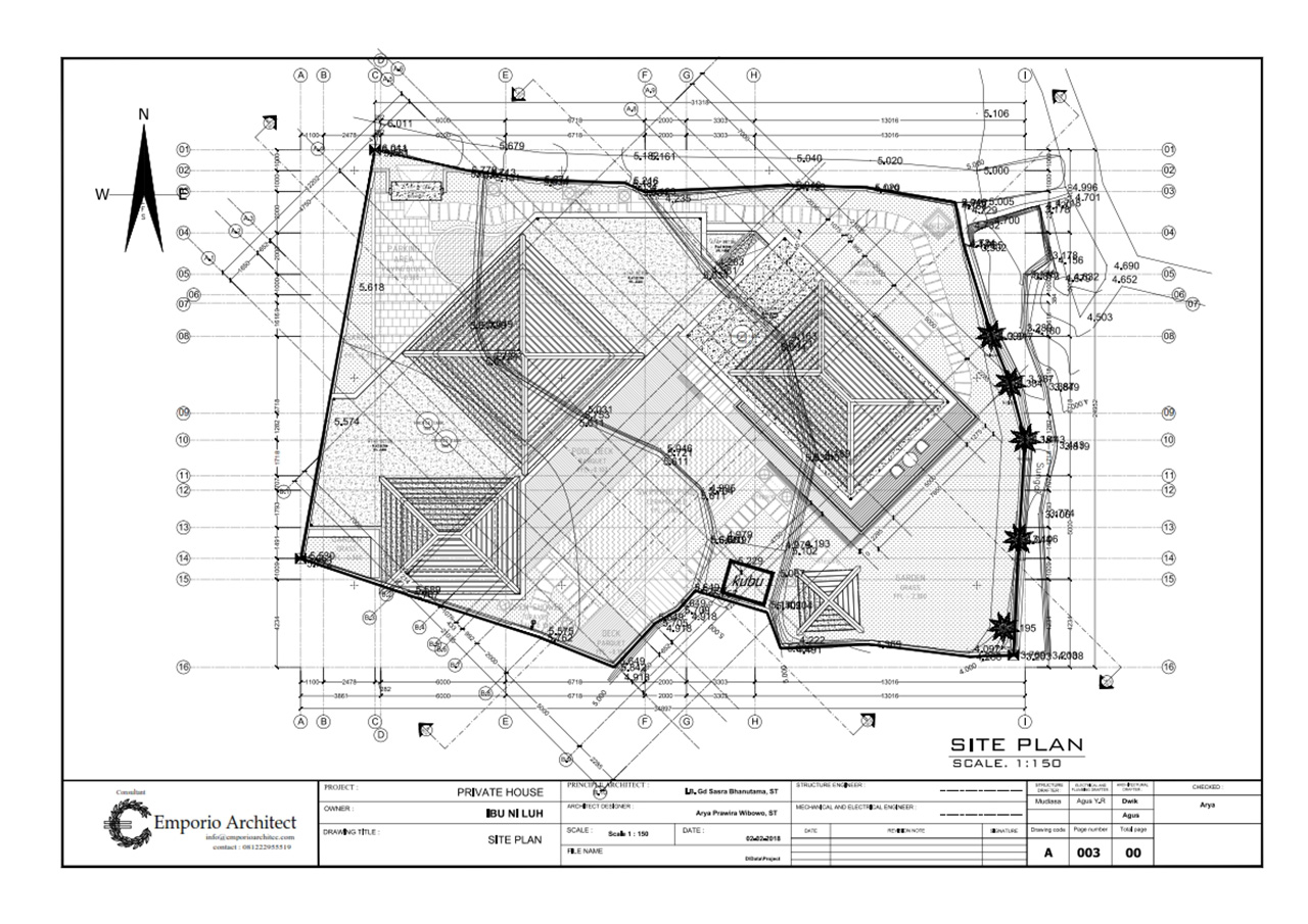
  1. Siteplan
    Siteplan

    Gambar site plan biasanya bisa dilihat di halaman awal gambar teknis. Site plan menunjukkan desain rencana bangunan secara garis besar dengan berbagai unsur penunjang di dalamnya termasuk bentuk atap, besaran dan batas lahan, denah lantai dasar bangunan, letak jalan dan pohon hingga fasilitas umum disekitarnya disertai skala, dimensi, mata angin, garis potongan dan simbol-simbol lainnya.

    Melalui site plan, Anda bisa melihat gambaran kasar suatu desain yang cukup lengkap namun tidak terlalu detail. Secara sederhana, siteplan ini terlihat seperti sebuah potret bangunan yang difoto dari langit menggunakan kamera drone.

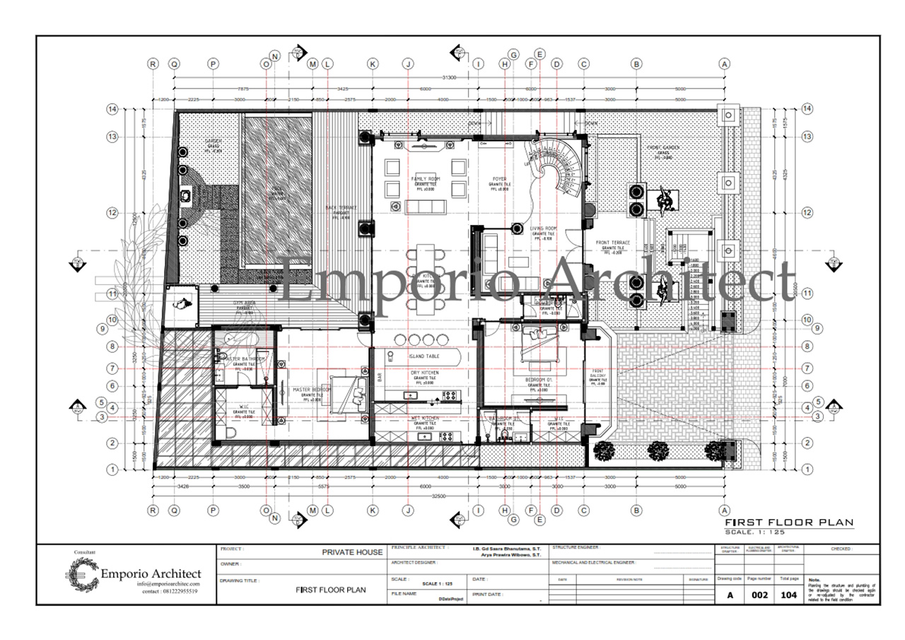
  2. Denah Tiap Lantai
    Denah Tiap Lantai

    Gambar denah memperlihatkan sirkulasi, tata ruang, tata perabot, levelling, letak bukaan hingga nama tiap ruang di tiap lantai pada desain bangunan. Bila bangunan rencananya punya 4 lantai, maka gambar denah juga berjumlah 4 gambar yang terbagi dalam gambar denah basement, lantai dasar, lantai satu, lantai dua dan seterusnya.

  3. Denah Atap
    Denah Atap

    Tak beda jauh dengan denah tiap lantai, denah atap menunjukkan rancangan/gambaran bentuk atap rumah yang akan dibangun. Sekilas, gambar denah atap terlihat mirip dengan gambar siteplan

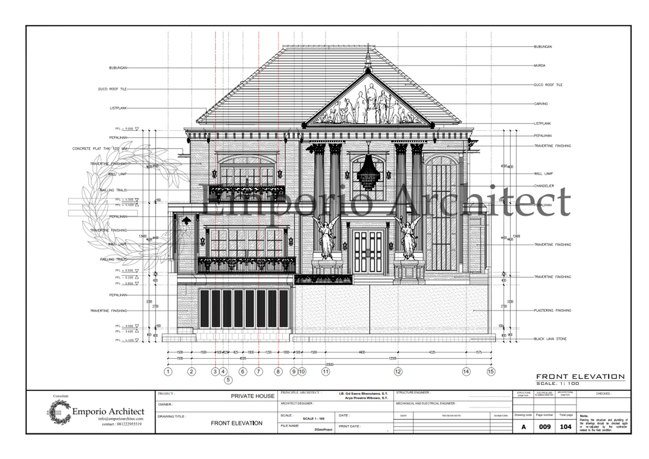
  4. Tampak (Depan, Samping Kanan, Samping Kiri, Belakang)
    Tampak (Depan, Samping Kanan, Samping Kiri, Belakang)

    Gambar tampak menunjukkan desain tampilan/eksterior bangunan, mulai dari dimensi, proporsi, gaya arsitektur, bentuk, warna dan material yang digunakan hingga elevasi atau tinggi pendeknya suatu bidang pada bangunan.

    Gambar tampak memperlihatkan semua sisi bangunan, mulai dari gambar tampak depan, tampak samping kiri, tampak samping kanan dan tampak belakang desain rumah.

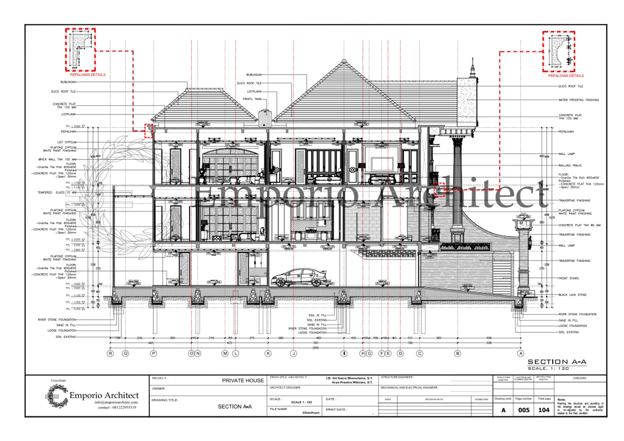
  5. Potongan (A-A, B-B, C-C, D-D)
    Potongan (A-A, B-B, C-C, D-D)

    Gambar potongan terlihat seperti bangunan yang dipotong dan menunjukkan lapisan bahan-bahan yang menyusun bangunan serta konstruksi & strukturnya dari atap hingga ke pondasi. Gambar potongan juga menumjukkan proporsi dan elevasi bangunan serta tampilan interior.

    Pada gambar potongan, semua yang terkena garis potongan seakan terbelah dan terlihat tiap bagiannya. Gambar potongan pada buku gambar teknis berjumlah sebanyak garis potongan pada denah, umumnya terdapat gambar potongan A-A, B-B, C-C dan D-D.

  6. Denah Rencana Kusen Pintu & Jendela
    Denah Rencana Kusen Pintu & Jendela

    Gambar rencana kusen memperlihatkan denah lantai beserta simbol-simbol yang merujuk pada letak kusen atau bukaan pada suatu lantai. Simbol-simbol pada gambar rencana kusen menunjukkan jenis atau type kusen yang digunakan, yang akan diperjelas pada gambar detail.

    Sama seperti sebelumnya, tiap lantai bangunan memiliki gambar rencana kusen yang berbeda. Dengan begitu terdapat denah rencana kusen pintu & jendela lantai dasar dan seterusnya hingga denah rencana kusen pintu & jendela denah atap.

  7. Detail Kusen
    Detail Kusen

    Gambar detail kusen, jendela dan pintu merupakan versi mendetail dari gambar rencana kusen pintu & jendela. Gambar detail kusen, jendela & pintu menunjukkan denah, tampak dan potongan kusen, jendela & pintu dimana ukuran, jenis & nama material yang digunakan bisa diketahui lebih detail.

  8. Rencana Plafond (tiap lantai)
    Rencana Plafond (tiap lantai)

    Gambar rencana plafond memperlihatkan rencana perletakan komponen rangka langit-langit atau plafond pada tiap lantai bangunan, lengkap dengan ukuran, skala dan nama material penyusun rangka plafon. Gambar rencana plafon berjumlah 1 lembar di tiap lantai bangunan.

  9. Rencana Pola Lantai (tiap lantai)
    Rencana Pola Lantai (tiap lantai)

    Sesuai namanya, rencana pola lantai menunjukkan perletakan material penutup lantai, lengkap dengan pola susunan, jenis, dimensi, warna material yang digunakan hingga elevasi area lantai. Gambar rencana pelantaian berjumlah 1 untuk masing-masing lantai bangunan.

  10. Denah Kamar Mandi Utama
    Denah Kamar Mandi Utama

    Denah kamar mandi utama mencakup berbagai komponen yang sama seperti denah lantai bangunan, hanya saja yang disoroti adalah bagian kamar mandi utamanya saja.

  11. Detail Kamar Mandi Utama (dengan potongan A-A, B-B, C-C, D-D)
    Detail Kamar Mandi Utama (dengan potongan A-A, B-B, C-C, D-D)

    Gambar detail kamar mandi utama memperlihatkan potongan A-A, B-B, C-C dan D-D kamar mandi utama dalam skala yang lebih besar sehingga dimensi, garis potongan, jenis material, elevasi lantai, letak dan arah bukaan, struktur dan konstruksi, tata perabot hingga tampilan kamar mandi utamanya terlihat jelas dan detail dari plafon hingga ke pondasi atau lantainya.

  12. Denah Tangga Tiap Lantai
    Denah Tangga Tiap Lantai

    Gambar denah tangga memperlihatkan rencana, bentuk dan tampilan tangga dalam skala yang lebih besar. Gambar ini berisi informasi mengenai bentuk tangga dan elevasi tiap anak tangga.

  13. Detail Tangga Tiap Lantai
    Detail Tangga Tiap Lantai

    Seperti namanya, gambar detail dan struktur tangga memperlihatkan detail dan potongan tangga dalam skala yang lebih besar. Gambar ini berisi informasi mendetail mengenai material penyusun tangga, bentuk tangga, elevasi tiap anak tangga, dimensi tangga hingga struktur dan konstruksi tangga. Tiap denah tangga di tiap lantai punya gambar detail tangganya tersendiri.

  14. Detail Pagar
    Detail Pagar

    Detail pagar memperlihatkan gambar potongan dan tampak depan pagar dalam skala yang lebih besar sehingga segala informasi mengenai dimensi, proporsi, bentuk, jenis dan warna material untuk finishing pagar rumah dapat terlihat lebih jelas dan mendetail.

B. Gambar Teknis Mekanikal, Elektrikal & Plumbing (MEP)

  1. Rencana Elektrikal (Titik Lampu & Saklar) Tiap Lantai
    Rencana Elektrikal (Titik Lampu & Saklar) Tiap Lantai

    Rencana elektrikal titik lampu & saklar memperlihatkan denah tiap lantai lengkap dengan simbol-simbol yang melambangkan titik rencana perletakan lampu & saklar dari basement, lantai satu, lantai dua dan seterusnya hingga atap beserta jalur pengkabelannya.

    Tak hanya titik perletakan lampu dan saklarnya saja, informasi mengenai jumlah titik lampu juga tersedia sehingga memudahkan perencanaan dan pembelian lampu saat pembangunan.

  2. Rencana Elektrikal (Stop Kontak, AC) Tiap Lantai
    Rencana Elektrikal (Stop Kontak, AC) Tiap Lantai

    Sedangkan rencana elektrikal stopkontak & AC memperlihatkan denah tiap lantai lengkap dengan simbol-simbol yang melambangkan titik rencana perletakan stok kontak dan AC di tiap lantai beserta jalur kabelnya.

    Tak hanya titik perletakan lampu dan saklarnya saja, informasi mengenai jumlah stop kontak juga tersedia sehingga memudahkan saat proses pembangunan nantinya.

    Umumnya rencana elektrikal digabung sehingga gambar tiap lantai menunjukkan jumlah dan titik rencana perletakan lampu, stok kontak, saklar dan AC sekaligus, 1 lembar per lantai.

  3. Denah Rencana Penangkal Petir
    Denah Rencana Penangkal Petir

    Gambar denah rencana penangkal petir menunjukkan tampak atas bangunan beserta rencana perletakan penangkal petir pada atap rumah beserta jalurnya.

  4. Detail Penangkal Petir
    Detail Penangkal Petir

    Sedangkan detail penangkal petir memperlihatkan sistem penangkal petir dalam skala yang lebih besar sehingga bentuk, ukuran, material dan sebagainya terlihat lebih jelas dam detail.

  5. Rencana Instalasi Air Bersih/Dingin & Air Panas (Tiap Lantai)
    Rencana Instalasi Air Bersih/Dingin & Air Panas (Tiap Lantai)

    Gambar rencana instalasi air bersih/dingin dan air panas memperlihatkan denah lantai berisi simbol yang melambangkan titik letak air bersih dan air panas beserta jalur pemipaannya.

    Nantinya tiap lantai bangunan punya gambar rencana instalasi air biasa/dingin dan air panas tersendiri. Bila pada suatu project rumah tidak ada sistem air panas, maka gambar ini hanya akan menunjukkan sistem air bersih atau air dinginnya saja.

  6. Rencana Instalasi Air Kotor, Air Buangan & Air Hujan (Tiap Lantai)
    Rencana Instalasi Air Kotor, Air Buangan & Air Hujan (Tiap Lantai)

    Seperti namanya, rencana instalasi air kotor, air hujan & air buangan menggambarkan denah lantai serta simbol yang melambangkan rencana perletakan hingga jalur instalasi pemipaan air kotor, air hujan dan buangan pada tiap lantai bangunan dari basement hingga ke atap.

  7. Detail Septictank/Biotank
    Detail Septictank/Biotank

    Detail septiptank/biotank memperlihatkan gambar denah serta potongan septiptank/biotank dalam skala yang lebih besar sehingga bentuk, tampilan, lapisan, material yang digunakan hingga dimensi/ukurannya terlihat lebih jelas.

  8. Detail Control Box & Biopori
    Detail Control Box & Biopori

    Detail peresapan (control box & biopori) menunjukkan denah serta potongan area resapan air hujan/biopori dan control box dalam skala yang lebih besar sehingga bentuk, susunan, jenis material yang digunakan hingga dimensinya terlihat lebih detail dan jelas.

  9. Detail Ground Tank
    Detail Ground Tank

    Seperti namanya, gambar detail ground tank memperlihatkan denah sekaligus skema ground tank dalam skala yang lebih besar sehingga bentuk, ukuran, material hingga alur pemipaannya dapat terlihat lebih jelas.

C. Gambar Teknis Struktural

  1. Denah Pondasi Telapak / Borepile
    Denah Pondasi Telapak / Borepile

    Denah pondasi telapak / borepile menggambarkan denah lantai bangunan tanpa keterangan nama ruang, elevasi dan furniture.

    Yang ditekankan pada denah pondasi ini adalah perletakan pondasi baik pondasi telapak / borepile, termasuk dinding pagar yang mengelilingi lahan, kolam, gazebo dan fasilitas lain.

  2. Denah Pondasi Batu Kali
    Denah Pondasi Batu Kali

    Denah pondasi batu kali menunjukkan denah lantai bangunan tanpa keterangan nama ruang, elevasi dan furniture. Yang ditekankan pada denah pondasi ini adalah perletakan pondasi batu pada bangunan, dinding luar yang mengelilingi lahan, kolam, gazebo dan fasilitas lain.

  3. Denah Tie Beam dan Kolom Lantai Dasar
    Denah Tie Beam dan Kolom Lantai Dasar

    Denah Tie Beam dan Kolom menggambarkan denah tiap lantai rumah tanpa nama ruangan dan furniture yang dilengkapi perletakan tie beam dan kolom pada rumah. Gambar denah tie beam dan kolom ini umumnya sebanyak 1 lembar pada basement dan lantai dasar bangunan.

  4. Denah Balok dan Kolom (Tiap Lantai)
    Denah Balok dan Kolom (Tiap Lantai)

    Denah Balok dan Kolom menggambarkan denah tiap lantai bangunan tanpa furniture yang dilengkapi dengan perletakan balok dan kolom pada bangunan. Gambar denah balok dan kolom ini umumnya jumlahnya sebanyak 1 lembar pada tiap lantai bangunan.

  5. Denah Balok Atap atau Talang
    Denah Balok Atap atau Talang

    Gambar denah balok atap atau talang hampir mirip dengan gambar sebelumnya, dimana gambar ini menunjukkan perletakan balok pada atap bangunan beserta jenis dan ukurannya.

  6. Denah Pembesian Pelat Lantai
    Denah Pembesian Pelat Lantai

    Denah pembesian pelat lantai menunjukkan denah slab/pelat lantai/plate reinforcement pada bangunan, berfungsi untuk menyalurkan beban menuju struktur utama bangunan.

    Gambar denah pembesian pelat lantai ini menunjukkan perletakan pembesian pelat lantai, material yang digunakan hingga ukurannya dengan lebih jelas.

  7. Portal Grid X (1 portal arah melintang)
    Portal Grid X (1 portal arah melintang)

    Portal grid X menggambarkan struktur rangka utama bangunan yang menunjukkan tampilan potongan struktur rangka utama secara melintang. Gambar ini memperlihatkan bentuk rangka utama bangunan keseluruhan, bahan yang dipakai, elevasi dan lainnya dari pondasi hingga atap.

  8. Portal Grid Y (1 portal arah memanjang)
    Portal Grid Y (1 portal arah memanjang)

    Punya fungsi dan tampilan yang serupa dengan gambar portal grid X, bedanya portal grid Y menunjukkan tampilan potongan struktur rangka utama bangunan secara memanjang.

  9. Detail Pondasi Telapak / Borepile
    Detail Pondasi Telapak / Borepile

    Tampil dalam skala yang lebih besar, gambar detail pondasi telapak/borepile menunjukkan bentuk, susunan, material yang digunakan hingga ukuran pondasi secara lebih jelas dan detail.

  10. Detail Pondasi Batukali
    Detail Pondasi Batukali

    Detail pondasi batu kali menunjukkan bagian/susunan pondasi batu kali pada bangunan, dimana skala gambar dibuat lebih besar agar gambar terlihat lebih jelas. Dari gambar ini, jenis material, susuna/lapisan hingga ukuran tiap bagian pondasi tampil lebih detail.

  11. Detail Penulangan Kolom
    Detail Penulangan Kolom

    Seperti namanya, gambar detail penulangan kolom menunjukkan tiap detail pembesian atau penulangan pada tiap kolom yang menyusun struktur rangka utama bangunan.

  12. Detail Penulangan Tie Beam
    Detail Penulangan Tie Beam

    Hampir sama seperti sebelumnya, gambar detail penulangan Tie Beam menunjukkan tiap detail pembesian atau penulangan pada Tie Beam suatu bangunan. Umumnya pada buku gambar teknis terdapat 1 lembar detail penulangan sloof, kolom, tie beam, beam hingga ring beam yang menyusun struktur rangka utama bangunan.

  13. Detail Penulangan Balok
    Detail Penulangan Balok

    Gambar detail penulangan balok menunjukkan tiap detail pembesian atau penulangan pada balok yang menyusun struktur rangka utama suatu bangunan.

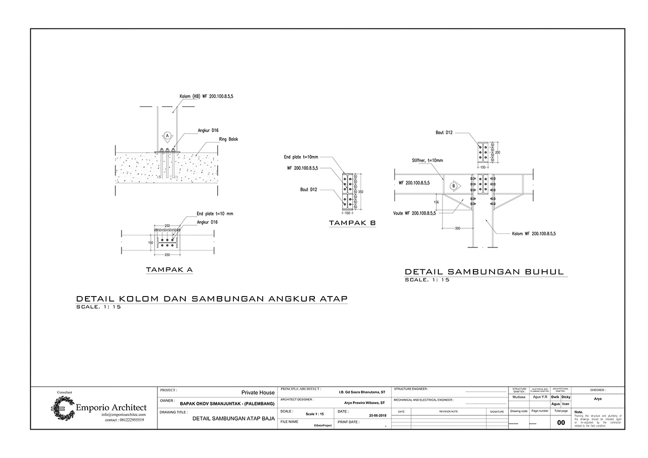
  14. Detail Struktur Baja IWF (struktur atap baja ringan tidak di berikan / by vendor)
    Detail Struktur Baja IWF (struktur atap baja ringan tidak di berikan / by vendor) Detail Struktur Baja IWF (struktur atap baja ringan tidak di berikan / by vendor)

    Gambar detail struktur baja IWF memperlihatkan bentuk, tampilan, keterangan, susunan hingga material yang digunakan pada struktur baja IWF suatu bangunan. Detail struktur baja IWF ini dibuat dalam skala yang lebih besar sehingga tiap bagiannya terlihat lebih jelas.

  15. Denah, Potongan dan Pembesian Struktur Tangga
    Denah, Potongan dan Pembesian Struktur Tangga Denah, Potongan dan Pembesian Struktur Tangga Denah, Potongan dan Pembesian Struktur Tangga

    Gambar denah, potongan dan pembesian struktur tangga menunjukkan tampilan denah, potongan dan tiap detail pembesian semua struktur yang tangga pada bangunan, lengkap dengan ukuran, elevasi, susunan hingga material yang dipakai dalam versi yang lebih detail.

    Umumnya pada tiap buku gambar kerja terdapat beberapa lembar gambar denah, potongan dan pembesian struktur tangga untuk tiap jenis tangga pada tiap lantai bangunan.

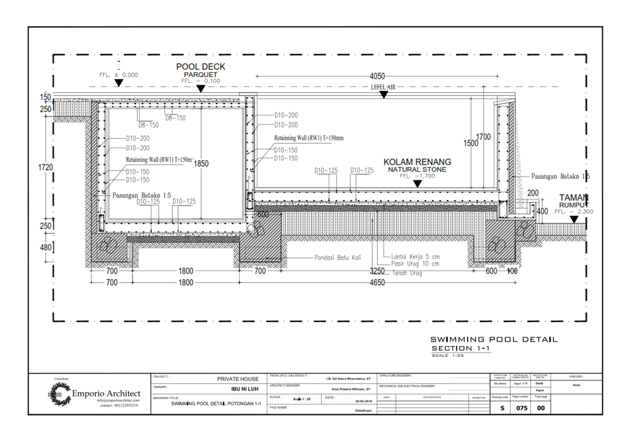
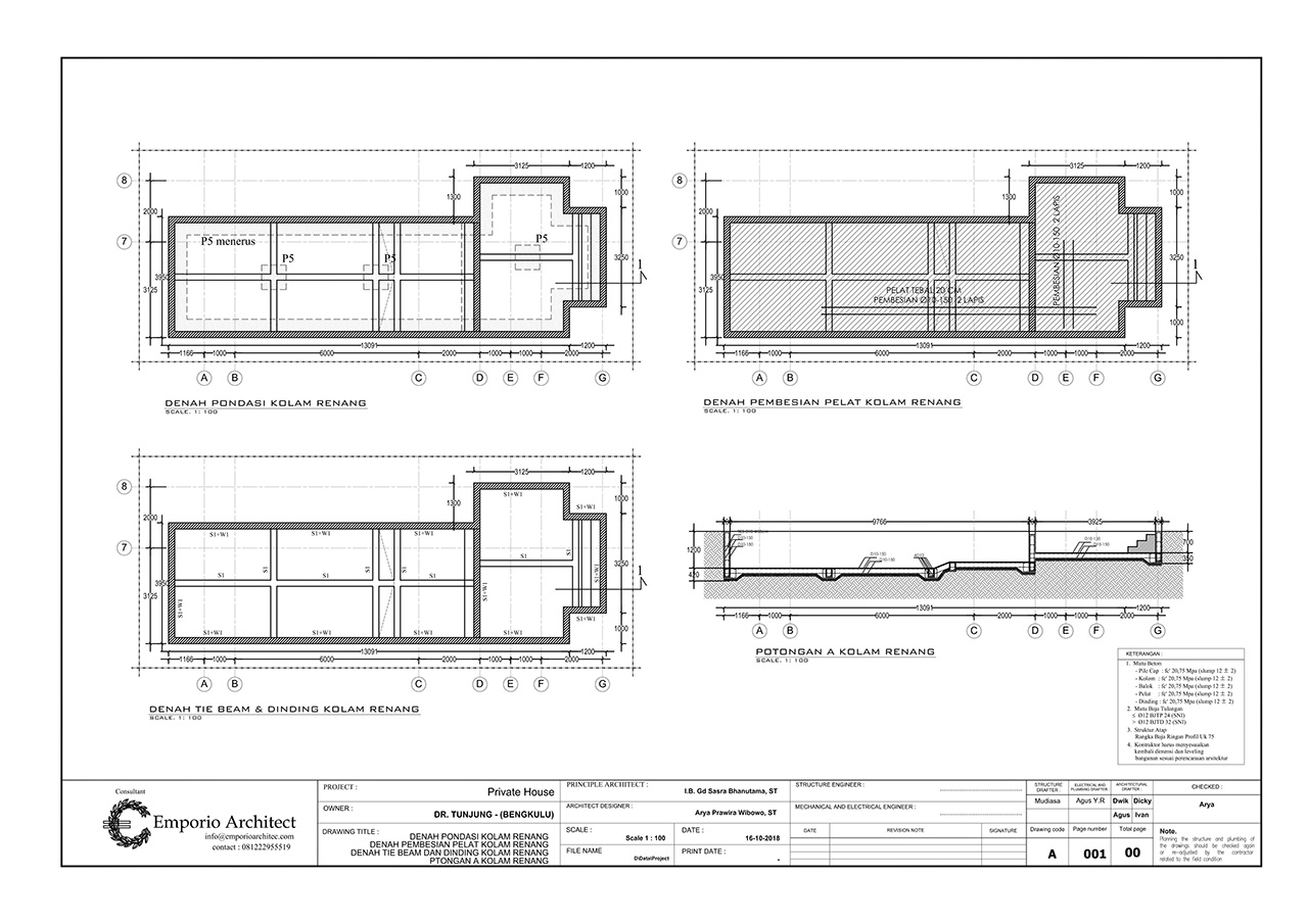
  16. Denah, Potongan dan Pembesian Struktur Kolam Renang
    Denah, Potongan dan Pembesian Struktur Kolam Renang Denah, Potongan dan Pembesian Struktur Kolam Renang Denah, Potongan dan Pembesian Struktur Kolam Renang

    Gambar denah, potongan dan pembesian struktur kolam renang menunjukkan hal mendetail pada kolam mulai dari bentuk denah, tampilan potongan hingga pembesian struktur kolam renang secara lebih detail.

    Dibuat dalam skala yang lebih besar, semua detail susunan, lapisan, ukuran, elevasi hingga bahan yang dipakai terlihat jelas dari pondasi, penulangan sampai ke permukaannya. Gambar ini dimasukkan pada buku gambar teknis bila pada terdapat kolam renang.

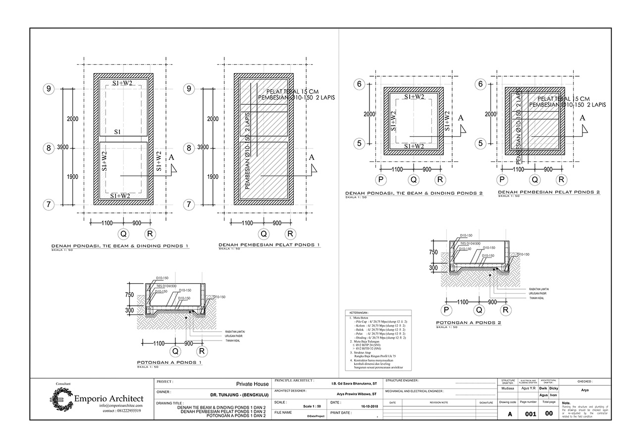
  17. Denah, Potongan dan Pembesian Struktur Kolam Ponds
    Denah, Potongan dan Pembesian Struktur Kolam Ponds

    Gambar denah, potongan dan pembesian struktur kolam (ponds) menunjukkan semua bagian ponds mulai dari bentuk denah, tampilan potongan hingga pembesiannya secara mendetail.

    Semua detail susunan, lapisan, ukuran, elevasi hingga bahan yang dipakai pada kolam (ponds) terlihat lebih jelas mulai dari pondasi, penulangan sampai permukaannya karena gambar dibuat dalam skala yang lebih besar.

    Sama seperti sebelumnya, gambar denah, potongan dan pembesian struktur kolam (ponds) ini juga dimasukkan pada buku gambar kerja bila pada project desain terdapat kolam (ponds).

Demikian daftar gambar untuk perencanaan desain rumah yang umum terdapat pada buku gambar teknis. Dari artikel ini, Anda bisa mengetahui fungsi tiap gambar desain dan memahami pentingnya tiap gambar desain sebagai pedoman membangun rumah tinggal.

Penting sekali bagi semua orang untuk memakai jasa konsultan arsitek sebelum membangun rumah. Dengan begitu, desain serta gambar teknisnya bisa didapat dan dijadikan pedoman kerja agar hasil jadi bangunan nantinya tidak melenceng dari desain dan ekspektasi awal.

Bila Anda berencana membangun rumah dan membutuhkan desain gambar teknisnya, gunakan saja jasa konsultan professional dan terpercaya yaitu Emporio Architect. Wujudkan desain rumah impian Anda bersama Emporio Architect.

INFO ARSITEKTUR

21 Januari 2022  
25 Januari 2022  
blog POPULER
DESAIN RUMAH TERBAIK: